WLAN SOUNDBAR
Das Produkt an der Wand anbringen

Sound Bar Quick Guide

Das Produkt an der Wand anbringen

  1. a Die Installationsanleitung für die Wandhalterung befindet sich in der Verpackung des Produkts. Die zwei Wandhalterungs-Schablonen aneinander ausgerichtet anbringen.
  2. b Die „TV Bottom Line“ in der Installationsanleitung der Wandhalterung an der Unterseite des TV-Geräts ausrichten und an der Wand befestigen. Die Mitte des an der Wand anzubringenden TV-Geräts an dem Teil ausrichten, der in der Installationsanleitung mit “TV Center” gekennzeichnet ist.

24471.png

15574.png

  1. c Mit einem Stift die Schraubenlöcher auf der Installationsanleitung markieren, wo die Wandhalterungen angebracht werden sollen.

24480.png

15592.png

  1. d An den auf der Installationsanleitung markierten Stellen die Schraubenlöcher bohren.
  2. e Die Wandhalterung-Installationsanleitung von der Wand abnehmen.
  3. f Mit den Dübeln und Schrauben die Wandhalterung fest an der Wand anbringen.

24517.png

24515.png

  1. g Auf der Rückseite des Produkts den Befestigungshaken ins Loch einsetzen und anbringen, sodass es gut passt.

24505.png

24503.png

  1. h Befestigen Sie die Haken der Einheit wie nachfolgend gezeigt an den Halterungen.

24494.png

24492.png

So befestigen Sie mit Dübel und Schrauben

(bei Anbringung an eine Betonwand)

  1. a Dort, wo Dübel gesetzt werden sollen, mit einem Bohrer und einer Bohrspitze der Größe Ø 6 mm jeweils ein 40 mm bis 45 mm tiefes Loch bohren.

24697.png

24695.png

  1. b Die Bohrlöcher säubern.

24685.png

24682.png

  1. c In die Bohrlöcher jeweils einen Dübel stecken, um die Wandhalterungen damit fixieren zu können. (Zum Einsetzen der Dübel einen Hammer benutzen.)

24671.png

24669.png

  1. d Die Wandhalterung so an die Wand halten, dass sich die Schraubenöffnungen mit den Löchern decken.

24660.png

24658.png

  1. e Dann die Schrauben in die Dübel in den Löchern eindrehen, um die Wandhalterung zu fixieren. Die Schrauben mit einem Drehmoment von 12 kgf/cm 24649.png 1 anziehen.

24641.png

24639.png

24630.png

24624.png Hinweis

  • Beim Befestigen der Einheit an der Wand vorsichtig vorgehen und darauf achten, dass nichts zu Boden fällt.
  • Das Produkt nicht an einer Wand befestigen, die Öl oder Ölnebel ausgesetzt sein könnte. Dadurch könnte das Produkt beschädigt werden, sodass es herunterfallen könnte.
  • Professionelle Installateure sollten dieses Handbuch sorgfältig lesen, um eine ordnungsgemäße Installation zu gewährleisten.
  • Professionelle Installateure sollten dieses Handbuch nach der Installation ihren Kunden geben und diese auffordern, es gut aufzubewahren, um später darin nachschlagen zu können.
  • Bewahren Sie dieses Handbuch nach der Installation gut auf, sodass Sie bei Bedarf darin nachschlagen können.
  • Fragen Sie in dem Geschäft, wo Sie das Produkt kaufen, nach einem professionellen Installateur, der Ihnen das Produkt installieren kann. Wird das Produkt nicht von einem Fachmann oder einer Fachfrau fachgerecht installiert, kann das Gefahren mit sich bringen und zu Körperverletzungen führen.
  • Auf keinen Fall darf das Produkt an einer Stelle installiert werden, die nicht stabil ist und das Gewicht nicht tragen kann. Wenn der Installationsort nicht fest genug ist, kann das Produkt zu Boden fallen und Körperverletzungen verursachen.
  • Wenn das Produkt nach seiner Installation an eine andere Stelle versetzt oder demontiert werden soll, wenden Sie sich an einen professionellen Installateur. Wenn Sie versuchen, das Produkt selber zu installieren oder zu versetzen, beachten Sie, dass die Installation eine technische Aufgabe ist, bei der Sicherheitsaspekte zu berücksichtigen sind.
  • Nach der Installation darf das Produkt nicht durch schweres Gewicht oder Stöße von außen belastet werden. Das Produkt könnte sich von der Wand lösen, von der Wand fallen und Verletzungen verursachen.

24605.png

24600.png Hinweis

  • Wird das Produkt an der Wand installiert, sollten Stromkabel und Signalkabel nicht auf der Rückseite der Einheit herabhängen. Dadurch könnten die Kabel beschädigt werden, sodass dann Brand- und Stromschlaggefahr besteht und ein Defekt beim Produkt bewirkt werden kann.
  • Installieren Sie das Produkt so, wie es in der Installationsanleitung beschrieben ist. Die Nichtbeachtung der Installationsanleitung kann zu Körperverletzungen und zu Schäden am Produkt führen.
  • Bei der Installation des Produkts und der Anpassung der Höhe der Installation sollten unbedingt zwei Personen mitwirken. Wenn eine Einzelperson alleine die Installation oder die Anpassung vornimmt, besteht die Gefahr, dass sie sich verletzt, und das Produkt könnte beschädigt werden.
  • Bevor Sie mit der Installation beginnen, überzeugen Sie sich zunächst, dass die Wand, an der Sie die Installation durchführen wollen, tragfähig und geeignet ist. Benutzen Sie die mit dem Produkt gelieferten Schrauben und Dübel. Wenn Sie andere Dübel oder Schrauben verwenden, können diese möglicherweise das Gewicht des Produktes nicht tragen, sodass dadurch ein Sicherheitsrisiko gegeben wäre.
  • Beim Bohren der Löcher in die Wand darauf achten, dass ein Bohrer mit der angegeben Stärke und Durchmesser benutzt wird. Beachten Sie die angegebene Bohrlochtiefe. Die Bohr- und Installationsarbeiten für das Produkt müssen wie in der Installationsanleitung beschrieben ausgeführt werden. Sonst könnte die Installation nicht halten, sodass die Sicherheit nicht gewährleistet ist.
  • Das Produkt nicht mit einem nassen Lappen abwischen, und unter dem Platz, wo es installiert ist, kein Heizgerät oder Luftbefeuchter betreiben. Wasser oder Dampf könnte in das Produkt eindringen, es könnte zu Hitzeentwicklung kommen und ein Brand könnte ausgelöst werden. Es besteht dann Stromschlaggefahr und das Produkt könnte nicht mehr funktionieren.
  • Das Produkt nicht im Bereich einer Sprinkleranlage oder eines Brandmelders installieren oder wo es zu Vibrationen oder Schlägen kommen kann oder wo eine Hochspannungsleitung oder Hochspannungsquelle in der Nähe ist.
  • Vor der Installation das Stromkabel des Produkts von der Netzsteckdose trennen. Die Installation bei eingestecktem Stromkabel birgt Stromschlag- und Feuergefahr.
  • Das Produkt nicht mit nassen Händen installieren. Arbeiten Sie mit Arbeitshandschuhen. Ohne Arbeitshandschuhe könnten Sie sich verletzen.
  • Installieren Sie diese Einheit nicht auf den Kopf gestellt. Teile dieses Gerätes könnten beschädigt werden, außerdem besteht Verletzungsgefahr.
  • Nicht mit dem Körpergewicht an der Einheit hängen, Stöße sollten vermieden werden.
  • Sichern Sie das Gerät fest an der Wand, so dass es nicht herunterfällt. Herabfallen des Geräts kann Körperverletzungen und Schäden am Gerät bewirken.
  • Bei Wandinstallation darauf achten, dass die Anschlusskabel nicht von einem Kind heruntergezogen werden können, sodass die Einheit herunterfallen und Verletzungen bewirken könnte.

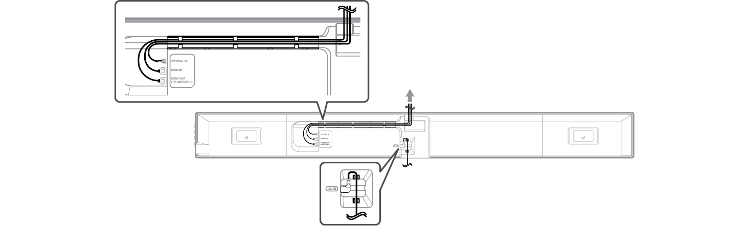
Kabel anordnen

Auf der Rückseite des Geräts befindet sich eine Aussparung, in der Sie die Kabel ordnen können.

Verlegen Sie die an dieses Gerät angeschlossenen Kabel wie unten gezeigt.

26867.png

24579.png

24563.png

24554.png Hinweis

  • Nachdem alle Kabelverbindungen hergestellt worden sind, können Sie die Kabel nach Bedarf auf geordnete Weise verlegen.
  • Wir empfehlen, die mit dem Produkt gelieferten HDMI-Kabel zu verwenden. Wird ein anderes HDMI-Kabel benutzt, gibt es möglicherweise Probleme, wenn es mit diesem Produkt benutzt wird.

Sicherheitshinweise