Wi-Fi SOUNDBAR ZVUČNIK
Montiranje proizvoda na zid

Sound Bar Quick Guide

Montiranje proizvoda na zid

  1. a U paketu proizvoda potražite vodilicu za instalaciju zidnog nosača. Povežite dvije vodilice za instalaciju zidnog nosača kako biste dobili jednu.
  2. b Poravnajte oznaku „TV Bottom Line“ na vodilici za instalaciju zidnog nosača s dnom televizora i pričvrstite ga na zid. Poravnajte sredinu televizora montiranog na zid s dijelom označenim sa „TV Center“ u vodilici za instalaciju.

24356.png

15622.png

  1. c Olovkom označite rupe za vijke na vodilici za instalaciju ondje gdje će biti pričvršćeni zidni nosači.

24365.png

15637.png

  1. d Izbušite rupe za vijke u označenim položajima na vodilici za instalaciju.
  2. e Uklonite vodilicu za instalaciju zidnog nosača sa zida.
  3. f Čvrsto pričvrstite nosače na zid pomoću zidnih tipli i vijaka.

24405.png

24403.png

  1. g Umetnite kuku za pričvršćivanje na stražnjoj strani proizvoda i u otvor na zidnom nosaču tako da se dobro uklopi.

24394.png

24392.png

  1. h Učvrstite kuke uređaja na nosače kao što je prikazano dolje.

24383.png

24381.png

Kako postaviti sidrišta i vijke

(Za ugradnju na betonski zid)

  1. a Izbušite rupe na mjestima za sidrišta svrdlom od Ø 6 mm do dubine od 40 mm do 45 mm.

24618.png

24616.png

  1. b Očistite izbušene rupe.

24608.png

24606.png

  1. c U rupe umetnite priložena sidrišta za pričvršćivanje zidnog nosača. (Koristite čekić za umetanje sidrišta.)

24597.png

24595.png

  1. d Gurnite podupirač zidnog nosača blizu zida da odgovara mjestima na kojima su rupe.

24584.png

24582.png

  1. e Pritegnite vijke za pričvršćivanje zidnog nosača na rupe. U tom trenutku vijke zatežite zakretnim momentom od 12 kgf/cm 24574.png 1.

24563.png

24561.png

24553.png

24545.png Napomena

  • Uređaj tijekom montaže na zid postavljajte pažljivo da ne bi pao.
  • Ne postavljajte ovaj proizvod na zid ako bi mogao biti izložen ulju ili uljnoj maglici. To može oštetiti proizvod i prouzročiti njegov pad.
  • Ovlašteni instalateri trebali bi pažljivo pročitati ovaj priručnik kako bi osigurali pravilnu instalaciju.
  • Ovlašteni instalateri trebali bi dati ovaj priručnik kupcima nakon instalacije i potaknuti ih da ga pročitaju i pohrane na prikladno mjesto za buduću uporabu.
  • Nakon čitanja priručnika za instalaciju, čuvajte ga na prikladnom mjestu za buduću uporabu.
  • Za instalaciju proizvoda obratite se ovlaštenom instalateru kojeg je imenovala trgovina. Instaliranje od strane nekoga tko nije ovlašteni instalater izuzetno je opasno i može rezultirati osobnim ozljedama.
  • Nemojte instalirati proizvod na nestabilnom mjestu koje ne može izdržati njegovu težinu. Ako mjestu ugradnje nedostaje dovoljne krutosti, proizvod može pasti i prouzročiti osobne ozljede.
  • Obratite se ovlaštenom instalateru kojeg je imenovala trgovina prije premještanja ili zamjene proizvoda nakon instalacije. Instalacija je tehnički zadatak i mogu se pojaviti sigurnosni problemi ako pojedinac pokuša osobno instalirati ili premjestiti proizvod.
  • Nemojte se kačiti na proizvod i ne izlažite ga jakim udarcima nakon instalacije. To može prouzročiti pad proizvoda i tjelesne ozljede.

24525.png

24519.png Napomena

  • Kada instalirate proizvod na zid, nemojte vješati strujne vodove ili signalne kabele sa stražnje strane uređaja. To može oštetiti kabele, dovesti do požara, strujnog udara ili kvara na proizvodu.
  • Instalirajte proizvod prema uputama u priručniku za instalaciju. Ako proizvod ne instalirate prema uputama u priručniku za instalaciju, to može uzrokovati ozbiljne ozljede ili oštećenje proizvoda.
  • Za instaliranje ili namještanje visine proizvoda potrebne su najmanje dvije osobe. Pokušaj samostalne instalacije ili namještanja može rezultirati osobnim ozljedama ili oštećenjem proizvoda.
  • Prije instalacije provjerite imate li dostupan zid. Koristite sidrišta i vijke isporučene s proizvodom. Ako koristite sidrišta ili vijke koji nisu originalni, možda neće moći izdržati težinu proizvoda, što čini sigurnosni rizik.
  • Kada bušite u zid za ugradnju, obavezno koristite svrdla i bušilicu određenog promjera. Slijedite upute za dubinu rupe. Bušenje i instaliranje proizvoda na načine koji nisu navedeni u priručniku za instalaciju mogu dovesti do nestabilne ugradnje i potencijalnih sigurnosnih problema.
  • Nemojte brisati proizvod mokrim ručnikom niti koristiti bilo kakvu opremu za grijanje ili ovlaživač zraka ispod mjesta na kojem je proizvod instaliran. Tekuća voda ili para mogu ući u proizvod, a pretjerana toplina može prouzročiti požar, strujni udar ili kvar.
  • Nemojte instalirati proizvod u blizini protupožarne mlaznice ili detektora, mjesta na kojem mogu nastati vibracije ili udarci ili u blizini visokonaponske žice ili izvora napajanja.
  • Prije instalacije izvucite kabel za napajanje proizvoda iz zidne utičnice. Instaliranje proizvoda dok je kabel napajanja priključen može dovesti do strujnog udara ili požara.
  • Proizvod nemojte instalirati golim rukama. Obavezno nosite radne rukavice. Pokušaj instaliranja bez radnih rukavica može prouzročiti tjelesne ozljede.
  • Nemojte naopako postavljati ovaj uređaj. Time se mogu oštetiti dijelovi uređaja ili može doći do ozljede.
  • Nemojte se kačiti o postavljeni uređaj i ne izlažite ga bilo kakvim udarcima.
  • Dobro pričvrstite uređaj na zid kako ne bi otpao. Ako uređaj padne, to može prouzročiti ozljede ili oštećenje proizvoda.
  • Ako je uređaj instaliran na zid, pobrinite se da dijete ne povlači neki od spojenih kablova jer to može prouzročiti pad uređaja.

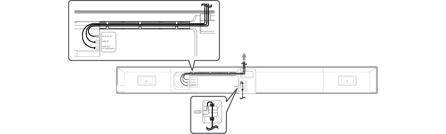
Organiziranje kabela

Na stražnjoj strani ove jedinice nalazi se utor za organiziranje kabela.

Postavite kabele spojene na ovaj uređaj kao što je prikazano u nastavku.

27052.png

24500.png

24485.png

24478.png Napomena

  • Nakon što dovršite sva povezivanja, možete rasporediti kabele prema potrebi.
  • Preporučujemo uporabu HDMI kabela isporučenog s ovim proizvodom. Ako se koristi drugi HDMI kabel, njegovo raspoređivanje možda neće biti moguće s ovim proizvodom.

Sigurnosne mjere predostrožnosti