Wi-Fi SOUND BAR
Στερέωση του προϊόντος σε τοίχο

Sound Bar Quick Guide

Στερέωση του προϊόντος σε τοίχο

  1. a Βρείτε τον οδηγό τοποθέτησης του βραχίονα τοίχου στο πακέτο προϊόντων. Συνδέστε τους δύο οδηγούς εγκατάστασης των βραχιόνων τοίχου για να τους ενώσετε και να γίνουν ένας.
  2. b Ευθυγραμμίστε την “TV Bottom Line” στον οδηγό εγκατάστασης του βραχίονα τοίχου με το κάτω μέρος της τηλεόρασης και τοποθετήστε τον στον τοίχο. Ευθυγραμμίστε το κέντρο της επιτοίχιας τηλεόρασης με το τμήμα που φέρει την ένδειξη “TV Center” στον οδηγό εγκατάστασης.

26305.png

16878.png

  1. c Με ένα μολύβι, σημειώστε τις οπές βιδών στον οδηγό εγκατάστασης όπου θα στερεωθούν οι βραχίονες τοίχου.

26317.png

16892.png

  1. d Ανοίξτε τις οπές βιδών στις σημειωμένες θέσεις στον οδηγό εγκατάστασης.
  2. e Αφαιρέστε τον οδηγό εγκατάστασης του βραχίονα τοίχου από τον τοίχο.
  3. f Στερεώστε σταθερά τα στηρίγματα στον τοίχο χρησιμοποιώντας τα ενθέματα στερέωσης και τις βίδες.

26358.png

26356.png

  1. g Τοποθετήστε το άγκιστρο στερέωσης στο πίσω μέρος του προϊόντος και την οπή στη βάση τοίχου για να προσαρμοστεί σωστά.

26347.png

26345.png

  1. h Στερεώστε τα άγκιστρα της μονάδας στους βραχίονες όπως φαίνεται παρακάτω.

26335.png

26333.png

Χρήση ούπα και βιδών

(Για τοποθέτηση σε τοίχο από σκυρόδεμα)

  1. a Ανοίξτε τρύπες στις κατάλληλες θέσεις με μύτη τρυπανιού Ø 6 mm σε βάθος 40 mm έως 45 mm.

26588.png

26586.png

  1. b Καθαρίστε τις τρύπες που ανοίξατε.

26577.png

26575.png

  1. c Εισάγετε στις τρύπες τα ούπα που παρέχονται για τη στήριξη της βάσης τοίχου. (Χρησιμοποιήστε σφυρί όταν εισάγετε τα ούπα.)

26566.png

26564.png

  1. d Κρατήστε το στήριγμα της βάσης κοντά στον τοίχο για να ταυτιστεί με τις θέσεις των τρυπών.

26553.png

26550.png

  1. e Σφίξτε τις βίδες για να στερεώσετε τη βάση στις τρύπες. Αυτήν τη φορά, σφίξτε τις βίδες με ροπή 12 kgf/cm 26542.png 1.

26532.png

26529.png

26519.png

26513.png Σημείωση

  • Όταν τοποθετήσετε τη μονάδα στον τοίχο, στερεώστε την καλά για να μην υπάρχει πιθανότητα πτώσης.
  • Μην τοποθετείτε το προϊόν σε τοίχο που μπορεί να εκτεθεί σε λάδι ή ψεκασμό λαδιού. Σε αυτήν την περίπτωση, το προϊόν θα μπορούσε να χαλάσει και να πέσει.
  • Οι επαγγελματίες τεχνικοί τοποθέτησης πρέπει να διαβάσουν προσεκτικά αυτό το εγχειρίδιο για να ολοκληρώσουν σωστά την τοποθέτηση.
  • Οι επαγγελματίες τεχνικοί τοποθέτησης πρέπει να προωθούν αυτό το εγχειρίδιο στους πελάτες μετά την τοποθέτηση και να ζητούν από αυτούς να το διαβάσουν και να το φυλάξουν σε πρακτικό σημείο για μελλοντική αναφορά.
  • Αφού διαβάσετε το εγχειρίδιο τοποθέτησης, φυλάξτε το σε πρακτικό σημείο για μελλοντική αναφορά.
  • Ζητήστε από το κατάστημα να σας υποδείξει έναν επαγγελματία τεχνικό για την τοποθέτηση του προϊόντος. Η τοποθέτηση από μη επαγγελματίες τεχνικούς είναι εξαιρετικά επικίνδυνη και μπορεί να οδηγήσει σε τραυματισμό.
  • Μην τοποθετείτε το προϊόν σε μη σταθερό σημείο που δεν μπορεί να αντέξει το βάρος του. Εάν το σημείο τοποθέτησης δεν είναι στιβαρό, το προϊόν μπορεί να πέσει και να προκαλέσει τραυματισμό.
  • Ζητήστε από έναν επαγγελματία τεχνικό που σας έχει υποδείξει το κατάστημα να μετακινήσει ή να αντικαταστήσει το προϊόν μετά την τοποθέτηση. Η τοποθέτηση είναι μια τεχνική εργασία και ενδέχεται να προκύψουν ζητήματα ασφαλείας αν επιχειρήσετε να τοποθετήσετε ή μετακινήσετε το προϊόν μόνοι σας.
  • Μην κρεμιέστε από το προϊόν και προστατέψτε το από ισχυρές κρούσεις μετά την τοποθέτηση. Σε αυτήν την περίπτωση, το προϊόν μπορεί να πέσει και να προκαλέσει τραυματισμό.

26493.png

26488.png Σημείωση

  • Όταν τοποθετείτε το προϊόν σε τοίχο, μην κρεμάτε τα καλώδια ρεύματος ή σήματος στο πίσω μέρος της μονάδας. Σε αυτήν την περίπτωση μπορεί να προκληθεί βλάβη στα καλώδια, η οποία θα μπορούσε να καταλήξει σε φωτιά, ηλεκτροπληξία ή δυσλειτουργία του προϊόντος.
  • Τοποθετήστε το προϊόν σύμφωνα με τις οδηγίες του εγχειριδίου χρήστη. Εάν δεν τοποθετήσετε το προϊόν σύμφωνα με τις οδηγίες του εγχειριδίου χρήστη, μπορεί να προκληθεί σοβαρός τραυματισμός ή βλάβη του προϊόντος.
  • Για την τοποθέτηση του προϊόντος ή για τη ρύθμιση του ύψους του χρειάζονται τουλάχιστον δύο άτομα. Εάν επιχειρήσετε να πραγματοποιήσετε ή να ρυθμίσετε την τοποθέτηση μόνοι σας, υπάρχει η πιθανότητα πρόκλησης τραυματισμού ή βλάβης στο προϊόν.
  • Πριν προχωρήσετε στην τοποθέτηση, βεβαιωθείτε ότι υπάρχει διαθέσιμος κατάλληλος τοίχος. Χρησιμοποιήστε τα ούπα και τις βίδες που παρέχονται μαζί με το προϊόν. Η χρήση μη εγκεκριμένων ούπα και βιδών ενδέχεται να μην στηρίζει το βάρος του προϊόντος και να προκαλέσει τραυματισμό.
  • Όταν τρυπάτε τον τοίχο για την τοποθέτηση, πρέπει να χρησιμοποιείτε μύτες τρυπανιού και τρυπάνια της καθορισμένης διαμέτρου. Ακολουθήστε τις οδηγίες για το βάθος της τρύπας. Η διάτρηση και η τοποθέτηση του προϊόντος με τρόπο διαφορετικό από αυτόν που ορίζεται στο εγχειρίδιο χρήστη μπορεί να οδηγήσει σε ασταθή τοποθέτηση και ενδεχόμενα προβλήματα ασφάλειας.
  • Μην σκουπίζετε το προϊόν με υγρή πετσέτα και μην χρησιμοποιείτε εξοπλισμό θέρμανσης ή αφυγραντήρα κάτω από το σημείο όπου έχει τοποθετηθεί το προϊόν. Νερό σε υγρή μορφή ή σε μορφή ατμού θα μπορούσε να εισχωρήσει στο προϊόν και η υπερβολική θερμότητα θα μπορούσε να προκαλέσει φωτιά, ηλεκτροπληξία ή δυσλειτουργία.
  • Μην τοποθετείτε το προϊόν κοντά σε σύστημα καταιονισμού ή σύστημα πυρανίχνευσης, σε σημείο που επηρεάζεται από δονήσεις ή κρούσεις ή κοντά σε καλώδιο ή πηγή ισχύος υψηλής τάσης.
  • Αφαιρέστε το καλώδιο τροφοδοσίας του προϊόντος από την πρίζα πριν την τοποθέτηση. Η τοποθέτηση του προϊόντος όταν το καλώδιο τροφοδοσίας συνδέεται στην πρίζα μπορεί να προκαλέσει ηλεκτροπληξία ή φωτιά.
  • Μην τοποθετείτε το προϊόν με γυμνά χέρια. Πρέπει να φοράτε γάντια εργασίας. Υπάρχει πιθανότητα πρόκλησης τραυματισμού αν η τοποθέτηση του προϊόντος γίνει χωρίς γάντια εργασίας.
  • Μην εγκαθιστάτε τη μονάδα ανάποδα. Ενδέχεται να προκληθεί ζημιά στα εξαρτήματα της μονάδας ή τραυματισμός.
  • Μην κρεμιέστε από την τοποθετημένη μονάδα και αποφεύγετε την επαφή με αυτήν.
  • Ασφαλίστε σφιχτά τη μονάδα στον τοίχο ώστε να μην πέσει. Η πτώση της μονάδας ενδέχεται να προκαλέσει τραυματισμό ή ζημιά στο προϊόν.
  • Όταν το προϊόν έχει τοποθετηθεί σε τοίχο, βεβαιωθείτε ότι τα παιδιά δεν μπορούν να τραβήξουν κάποιο από τα συνδεδεμένα καλώδια, επειδή ενδέχεται να προκληθεί πτώση της μονάδας.

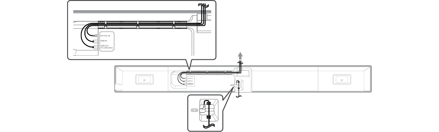
Οργάνωση καλωδίων

Υπάρχει μια αυλάκωση στο πίσω μέρος αυτής της μονάδας για την οργάνωση των καλωδίων.

Οργανώστε τα καλώδια που είναι συνδεδεμένα σε αυτήν τη συσκευή όπως φαίνεται παρακάτω.

29114.png

26467.png

26452.png

26444.png Σημείωση

  • Αφού ολοκληρώσετε όλες τις συνδέσεις, μπορείτε να τακτοποιήσετε κατά περίπτωση τα καλώδια.
  • Συνιστάται η χρήση του καλωδίου HDMI που παρέχεται μαζί με αυτό το προϊόν. Εάν χρησιμοποιηθεί άλλο καλώδιο HDMI, ενδεχομένως να μην είναι δυνατή η τακτοποίησή του με αυτό το προϊόν.

Προφυλάξεις ασφαλείας