Brezžični zvočniški modul
Montaža izdelka na steno

Sound Bar Quick Guide

Montaža izdelka na steno

  1. a V embalaži poiščite priložena navodila za namestitev stenskega nosilca. Namestitveni vodili dveh stenskih nosilcev povežite, da ju združite v enega.
  2. b Poravnajte napis »Spodnja črta televizorja« v navodilih za namestitev stenskega nosilca s spodnjim delom televizorja in ga pritrdite na steno. Poravnajte sredino na steno nameščenega televizorja z delom, označenim s »Sredina televizorja« v navodilih za namestitev.

23367.png

15017.png

  1. c S pisalom na navodilih za namestitev označite luknje za vijake, kamor bo pritrjen stenski nosilec.

23384.png

15029.png

  1. d Skozi označena mesta na navodilih za namestitev izvrtajte luknje.
  2. e S stene odstranite navodila za namestitev stenskega nosilca.
  3. f Z zidnimi vložki in vijaki nosilec trdno pritrdite na steno.

23423.png

23421.png

  1. g Kabel za pritrjevanje namestite v zadnjo stran izdelka in v odprtino na strenskem nosilcu, da se dobro prilega.

23411.png

23409.png

  1. h Kavlje enote pritrdite na konzole, kot je prikazano spodaj.

23399.png

23397.png

Namestitev čepov in vijakov

(Za namestitev na betonsko steno)

  1. a Na položajih čepov s svedrom Ø 6 mm izvrtajte izvrtine v globino 40 mm do 45 mm.

23584.png

23582.png

  1. b Izvrtine očistite.

23574.png

23572.png

  1. c Vstavite priložene čepe za namestitev stenskega nosilca v izvrtine. (Pri vstavljanju čepov si pomagajte s kladivom.)

23562.png

23560.png

  1. d Zidni nosilec potisnite tesno ob steno, da se odprtine v nosilcu prekrivajo z izvrtinami.

23550.png

23547.png

  1. e V odprtine vstavite vijake in jih privijte. Tokrat vijake privijte z navorom 12 kgf/cm 1 23538.png.

23528.png

23526.png

23515.png

23510.png Opomba

  • Ko enoto namestite na steno, ko skrbno pritrdite, da ne bo padla dol.
  • Izdelka ne smete namestiti na steno, če obstaja verjetnost, da bo izpostavljen maščobi ali maščobnemu pršcu. To lahko izdelek poškoduje in povzroči, da pade na tla.
  • Profesionalni monterji morajo ta priročnik skrbno prebrati, da bodo lahko zagotovili pravilno namestitev.
  • Po namestitvi naj profesionalni monterji navodila predajo strankam in jim svetujejo, da navodila preberejo ter nato shranijo na priročno mesto, če bi jih v prihodnje še potrebovali.
  • Ko preberete ta navodila za namestitev, jih shranite na priročnem mestu za nadaljnjo uporabo.
  • Za namestitev izdelka se obrnite na profesionalnega monterja, ki ga predlaga prodajalec. Namestitev, ki jo opravi oseba, ki ni profesionalni monter, je zelo nevarna in lahko povzroči telesne poškodbe.
  • Izdelka ne smete namestiti na nestabilno mesto, ki ne bo preneslo njegove teže. Če mesto namestitve ni dovolj trdno, lahko izdelek pade in povzroči telesne poškodbe.
  • Preden izdelek premaknete ali prestavite na drugo mesto, se obrnite na profesionalnega monterja, ki ga predlaga prodajalec. Namestitev izdelka je tehnično opravilo, zaradi česar lahko pride do varnostnih tveganj, če ga poskuša namestiti ali premakniti nestrokovna oseba.
  • Po namestitvi se na izdelek ne obešajte oziroma ga ne izpostavljajte močnim udarcem. Zaradi tega bi lahko izdelek padel in povzročil telesne poškodbe.

23492.png

23487.png Opomba

  • Pri nameščanju izdelka na steno napajalni kabel ali signalni kabli ne smejo viseti z zadnje strani enote. Na ta način lahko poškodujete kable, kar lahko povzroči požar, električni udar ali okvaro izdelka.
  • Izdelek namestite v skladu z navodili iz priročnika za montažo. V primeru, da izdelek ne bo nameščen v skladu z navodili iz priročnika za montažo, lahko pride do poškodb izdelka ali telesnih poškodb.
  • Pri nameščanju izdelka ali prilagajanju višine njegove namestitve naj bosta vedno vsaj dve osebi. Če bi izdelek poskušala namestiti ali prilagoditi samo ena oseba, lahko pride do poškodb izdelka ali telesnih poškodb.
  • Pred začetkom namestitve poskrbite, da bo na voljo prosta stena. Uporabite priložene čepe in vijake. Če uporabite druge čepe ali vijake, ki niso ustrezni, morda ne bodo prenesli teže izdelka, kar lahko povzroči varnostno tveganje.
  • Pri vrtanju lukenj v steno, potrebnih za namestitev, uporabite vrtalne krone in svedre s predpisanim premerom. Za globino izvrtine upoštevajte navodila. Vrtanje in namestitev izdelka na način, ki ni določen v priročniku za namestitev, lahko povzroči nestabilno namestitev in morebitna varnostna tveganja.
  • Izdelka ne brišite z mokro krpo oziroma pod njim ne uporabljajte grelnikov ali vlažilnikov. V izdelek lahko vdrejo tekočina ali para, prevelika toplota pa lahko povzroči požar, električni udar ali okvaro.
  • Izdelka ne smete namestiti v bližino gasilnih pršilnikov ali požarnih detektorjev, na mesto, kjer bi lahko prišlo do vibracij ali udarca, in prav tako ne v bližino visokonapetostnega voda ali vira električnega napajanja.
  • Napajalni kabel izdelka pred namestitvijo izvlecite iz stenske vtičnice. Sicer lahko pride do električnega udara ali požara.
  • Izdela ne smete nameščati z golimi rokami. Vedno uporabljajte delovne rokavice. Pri namestitvi brez delovnih rokavic bi lahko prišlo do telesnih poškodb.
  • Enote ne smete namestiti obrnjene na glavo. Zaradi tega se lahko poškodujejo deli enote ali pride do telesnih poškodb.
  • Ne obešajte se na nameščeno enoto in preprečite delovanje kakršne koli sile nanjo.
  • Enoto varno pritrdite na steno, da ne bo padla na tla. Ob padcu se lahko enota poškoduje ali povzroči telesne poškodbe.
  • Če je enota nameščena na steno, poskrbite, da otroci ne bodo vlekli za kable, saj lahko enota pade na tla.

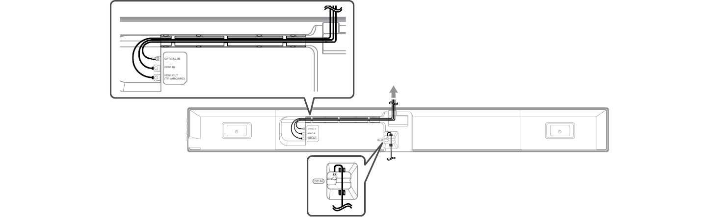
Organiziranje kablov

Na zadnji strani te enote je urejevalnik kablov.

Kable, priključene na to napravo, uredite, kot je prikazano spodaj.

23467.png

23465.png

23450.png

23443.png Opomba

  • Potem, ko povežete vse, kar je treba, lahko po potrebi uredite tudi kable.
  • Priporočamo, da uporabite gumb HDMI, ki je priložen temu izdelku. V primeru, da uporabite drug kabel HDMI, morda s tem izdelkom ne bo uporaben.

Varnostni previdnostni ukrepi